10 Apr Residential Renovation: Supersized and Customized

No two residential remodels are the same. That’s why we customize our surveys to fit our client requirements. Here’s an example…
The Project
We were excited to survey an estate home with over 13,000 square feet of living space on the outskirts of Edmonton, AB for high-profile design firm, Kyle & Co. Design Studio.
The designers are focused on bringing the original 1980’s interior up to date. Browsing some of their past work, we know they will do some amazing work with this large canvas!
The Scope of Work
Our survey was customized to their specific needs. It included:
- A Matterport Virtual Tour: Whenever the designer needs to recall a visual detail, she can simply open the tour in her browser and navigate to the area in question.
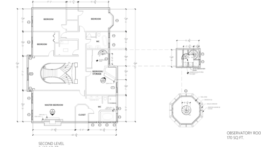
- A Floor Plan: The foundational view that every design project needs
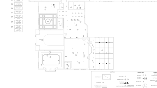
- A Reflected Ceiling Plan: This home features many ceiling architectural features that can be incorporated into the future design
- Specific Detail Elevation Views: These included a complete visual opening schedule as well as elevations of all six fireplaces.
The Survey Execution
With an aim of minimizing our site time, while maximizing the data we collect, our two-person team spent one day both scanning the property with our Matterport Pro 3 camera, and taking precision laser measurements of key project locations.
Offsite, our production team then processes the scan and measurement data into the floor plan, ceiling plan, and elevation views.
Follow @kyleandcodesign for inspiration and to view some of their amazing work!




Sorry, the comment form is closed at this time.